Četverosobni stan Črnomerec, Gornja Kustošija, Zagreb

€ 379.000
4
97 m²
1
1
Da
Balkon

Bilješka

Oglas ažuriran 22. 01. 2026.
Opis

referenca: 3-69197

Zagreb, Črnomerec - stan sa balkonom, lođom i parkingom

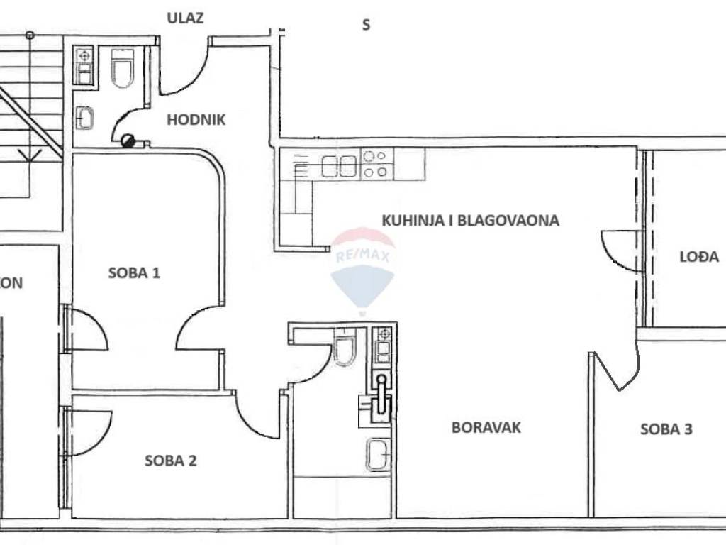
Na atraktivnoj lokaciji na Črnomercu, REMAX Centar nekretnina iz ponude izdvaja četverosoban stan površine 91 m2.

Stan je izuzetno prostran i svijetao, odličnog je rasporeda i orijentacije je istok-zapad. Nalazi se na prvom katu, od ukupno četiri kata zgrade s liftom, izgrađene 2004. godine. Sastoji se od 3 spavaće sobe, open-space dnevnog boravka sa kuhinjom i blagovaonom, kupaonice, toaleta, hodnika te lođe i balkona. Stanu pripada i garažno parkirno mjesto površine 12,80 m2, u zgradi na etaži -1.

Mikrolokacija pruža mnoštvo sadržaja. U neposrednoj blizini nalazi se Spar, Maxi Konzum, nekoliko škola, dječji vrtić i fakultet, ljekarna, Dom zdravlja, tramvajska i autobusna stanica javnog gradskog prijevoza te željeznička stanica.

S obzirom na lokaciju, sadržaj i kvadraturu, idealan je za obitelj ili investiciju.
Mogućnost kupnje putem kredita.

ID CODE: 3-69197

Dora Rukavina
Prodajni predstavnik
Mob: +385 91 641 0057
Tel: +385 1 670 1704
E-mail: d.rukavina@remax-centar.hr
remax-centarnekretnina.com
Značajke
Vrsta
Stan
Ugovor
Prodaja
Kat
1 kat
Katovi zgrade
4
Dizalo
Da
Površina
97 m²
Prostorije
4
Spavaće sobe
3
Kupaonice
1
Balkon
Da
Terasa
Ne
Informacije o cijeni
Cijena
€ 379.000
Cijena po m²
3.907 €/m²
Energetska učinkovitost
  • Godina izgradnje

    2004
  • Energetski certifikat

    Neklasificirano
Otkrijte svaki kutak nekretnine
+12
Dodatne mogućnosti

Obratite se oglašivaču

Ili