Višeobiteljska kuća Vrapče, Podsused - Vrapče, Donja Kustošija, Zagreb

€ 260.000
5
171 m²
2
Ne

Bilješka

Oglas ažuriran 10. 03. 2026.
Opis

referenca: 300431011-627

Vrapče – Kuća za smještaj radnika, 171m2

Prodaje se kuća za smještaj radnika. Nalazi se u centru Vrapča između Bolničke i Bolonje. Građena je šezdesetih i dvojni je objekt. Na kući je ove godine postavljen kompletno novi krov, krovni prozori, novi podovi i kondenzacijski bojler. Iznajmljena je za smještaj radnika.

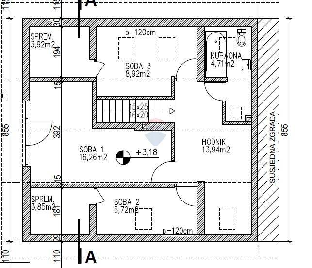
U prizemlju su dvije sobe, kuhinja, izba, kupaonica i toalet. Unutarnje stepenice vode na kat na kojem su tri sobe, boravak i kupaonica. Kuća ima i veliki podrum te garažu u dvorištu koja je preuređena u ured.

Odlična prilika za ulaganje i preuzimanje unosnog posla.

ID CODE: 300431011-627

Dinko Cindrić
Prodajni predstavnik
Mob: +385 91 641 5052
Tel: +385 1 670 1704
Fax: +385 1 670 1711
E-mail: d.cindric@remax-centar.hr
remax-centarnekretnina.com
Značajke
Vrsta
Višeobiteljska kuća
Ugovor
Prodaja
Katovi zgrade
2
Dizalo
Ne
Površina
171 m²
Prostorije
5
Spavaće sobe
4
Kupaonice
2
Balkon
Ne
Terasa
Ne
Garažno mjesto, parkirna mjesta
1 u garaži
Informacije o cijeni
Cijena
€ 260.000
Cijena po m²
1.520 €/m²
Energetska učinkovitost
  • Energetski certifikat

    Neklasificirano
Tlocrt
Otkrijte svaki kutak nekretnine
+8
Dodatne mogućnosti

Obratite se oglašivaču

Ili