Četverosobni stan Kožino, Zadar - Okolica, Petrčane - Kožino, Zadar

€ 595.000
4
154 m²
2
PR
Ne
Terasa

Bilješka

Oglas ažuriran 04. 02. 2026.
Opis

referenca: 169

ZADAR, KOŽINO, STAN PRIZEMLJE 154,79 S BAZENOM

U naselju Kožino 10 min vožnje od Zadra u Ulici put SV. Petra prodaje se stan u prizemlju s bazenom ukupne kvadrature 154,79 m2.
Lokacija zgrade je izuzetno dobra jer ima pogled na more te sa sjeverne strane je zeleni pojas, a udaljena je ni 200 m od mora .
Kožine su mirno mjesto između Zadra i Nina s netaknutim plažama i čistim morem. U blizini se nalazi trgovina, dječje igralište , a izlaz na auto put je na svega 15 min od mjesta, kao i zračna luka Zemunik koja je na 20 min vožnje.
U zgradi se nalaze 4 stana, a pored ove zgrade nalazi se i druga zgrada s 4 stana .
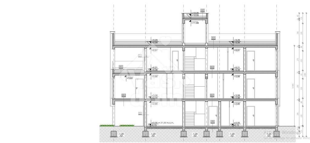
Zgrada ima uporabnu dozvolu , " A" energetski razred , grijanje je na dizalice topline i više klima uređaja.
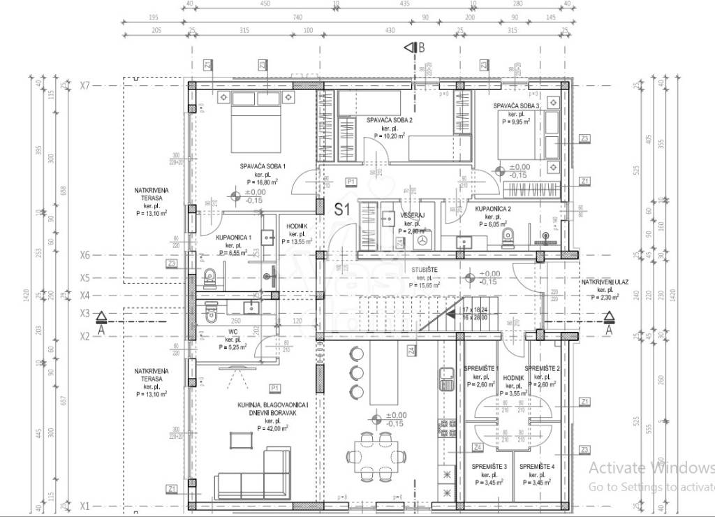
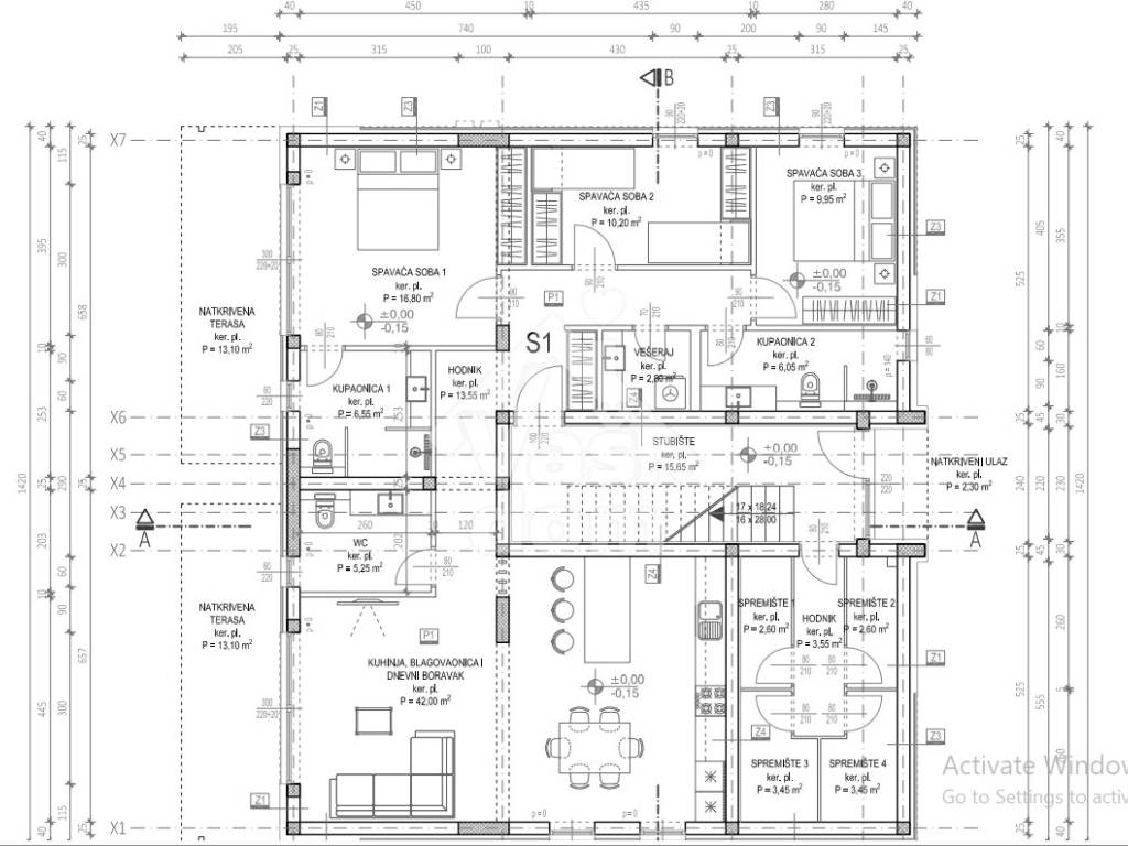
Stan je svijetao i prostran s tri spavaće sobe, dvije kupaonice, toaleta, vešeraja , prostranog dnevnog boravka kuhinje i blagovaonice iz kojeg se izlazi na terasu i vrt gdje se nalazi bazen.Uz stan idu i dva vanjska parkirna mjesta i spremište koji su u izraženoj kvadraturi i cijeni.
Sve u zgradi je jako kvalitetno ugrađeno.
Video isječak pogledajte na linku: https://youtu.be/W4jkioPaHnk
Za detalje slobodno nas kontaktirajte.

ID CODE: 169

Josip Bakula
Agent s licencom
Mob: 098 510 234
Tel: 0917671422
E-mail: info@vasdom-nekretnine.hr
www.vasdom-nekretnine.hr
Značajke
Vrsta
Stan
Ugovor
Prodaja
Kat
Prizemlje
Katovi zgrade
2
Dizalo
Ne
Površina
154 m²
Prostorije
4
Spavaće sobe
3
Kupaonice
2
Balkon
Ne
Terasa
Da
Garažno mjesto, parkirna mjesta
2 na zajedničkom parkingu
Klimatizacija
Samostalno, hlađenje/grijanje
Informacije o cijeni
Cijena
€ 595.000
Cijena po m²
3.864 €/m²
Energetska učinkovitost

Potrošnja energije

A

Tlocrt
Otkrijte svaki kutak nekretnine
+7
Dodatne mogućnosti

Obratite se oglašivaču

Ili