Trosobni stan novo, šesti kat, Ciglenica, Zagreb

€ 599.000
3
123 m²
1
6
Da

Bilješka

Oglas ažuriran 26. 03. 2026.
Opis

referenca: I31448

PRODAJA, STAN S GALERIJOM, TREŠNJEVKA, KRANJČEVIĆEVA, 123m2, 3,5soban
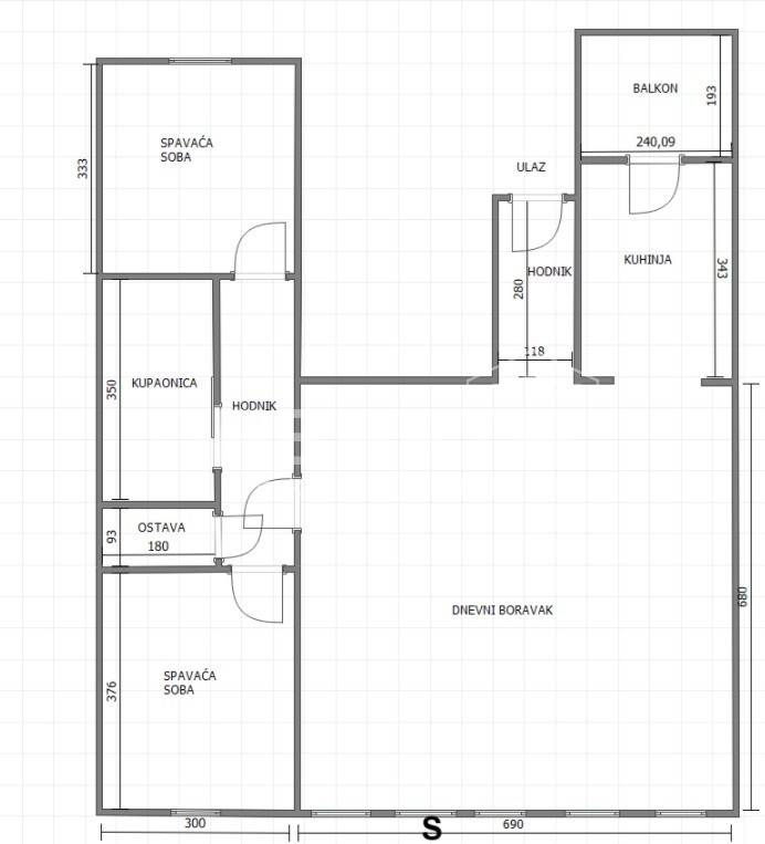
Na atraktivnoj lokaciji na Trešnjevci u Kranjčevićevoj ulici smješten je stan s galerijom. Ukupna površina stana iznosi 123m2. Donja etaža ima 97m2 i sastoji se od ulaznog hodnika, dnevnog boravka s blagovaonom u nastavku koje su smješteni kuhinja i balkon, dvije spavaće sobe, ostava koja služi kao garderoba i kupaonica. Iz dnevnog boravka spiralnim stepenicama penje se na galeriju veličine 26m2. Održavan stan, pogled na Sljeme kao i na južnu sunčanu stranu. Stanu pripada i spremište u zgradi na istoj etaži.
Sav sadržaj u neposrednoj blizini zgrade.
Značajke
Vrsta
Stan
Ugovor
Prodaja
Kat
6 kat
Dizalo
Da
Površina
123 m²
Prostorije
3
Spavaće sobe
2
Kupaonice
1
Namješteno
Ne
Grijanje
Centralno, na plinski pogon
Klimatizacija
Hlađenje/grijanje
Informacije o cijeni
Cijena
€ 599.000
Cijena po m²
4.870 €/m²
Energetska učinkovitost
  • Godina izgradnje

    1977
  • Stanje

    Novo / U izgradnji
  • Grijanje

    Centralno, na plinski pogon
  • Klima uređaj

    Hlađenje/grijanje
Otkrijte svaki kutak nekretnine
+7
Dodatne mogućnosti

Obratite se oglašivaču

Ili