map icon

Stan novo, drugi kat, Zadar

Zadar
€ 300.320
5
97 m²
1
2
Terasa

Bilješka

Oglas ažuriran 18. 04. 2026.
Opis

referenca: 696-1

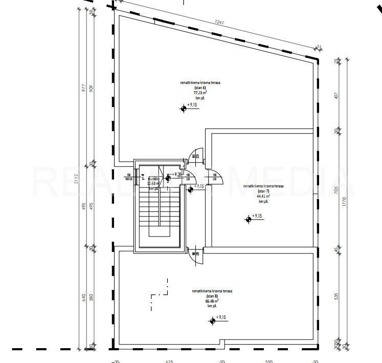
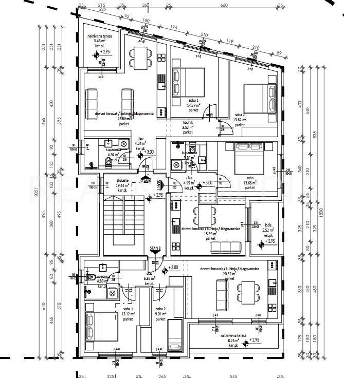
Na prodaju stan S6 na drugom katu manje stambene zgrade s ukupno osam stanova.
Stan se sastoji od: ulaznog prostora, kuhinje, blagovaonice i dnevnog boravka u otvorenom konceptu, hodnika, dvije spavaće sobe, kupaonice. Iz dnevnog boravka izlazi se na natkriveni balkon.
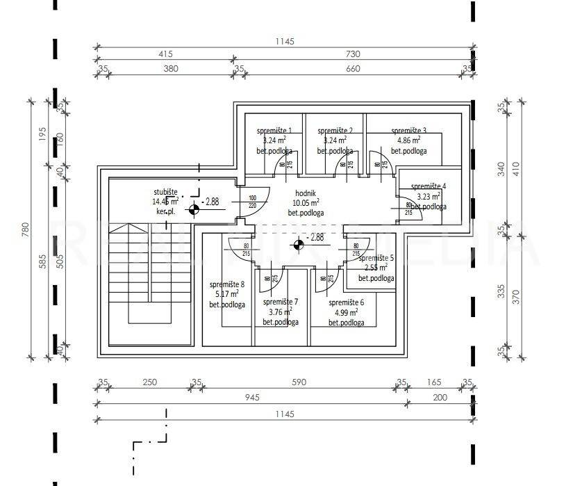
Stan dodatno uključuje:spremište,DVA vanjska parkirna mjesta te KROVNA TERASA površine 76,01 m2
Opremanje i kvaliteta gradnje:dizalica topline, protuprovalna vrata, portafon
Predviđeni završetak gradnje: kraj 2026. godine.
Kupac ne plaća porez na promet nekretnina!
Kupac ne plaća agencijsku proviziju!
Lokacija nudi mirno okruženje, a u neposrednoj blizini nalaze se svi potrebni sadržaji za kvalitetan život.
Ako želite znati više, možete razgovarati s Ivana Zanki Kršlović.
Značajke
Vrsta
Stan
Ugovor
Prodaja
Kat
2 kat
Površina
97 m²
Prostorije
5
Spavaće sobe
2
Kupaonice
1
Namješteno
Ne
Terasa
Da
Ostale karakteristike
  • Protuprovalna vrata
  • Video portafon
Informacije o cijeni
Cijena
€ 300.320
Cijena po m²
3.096 €/m²
Energetska učinkovitost
  • Godina izgradnje

    2026
  • Stanje

    Novo / U izgradnji
  • Energetski certifikat

    Neklasificirano
Otkrijte svaki kutak nekretnine
+13
Dodatne mogućnosti

Obratite se oglašivaču

Ili