Dvosobni stan Ivanečka, Knežija - Srednjaci, Zagreb

€ 293.844
2
62 m²
1
Balkon

Bilješka

Oglas ažuriran 28. 04. 2026.
Opis

referenca: EUROVILLA-491354

Zagreb, Trešnjevka HERITAGE, trosoban stan 63 m²

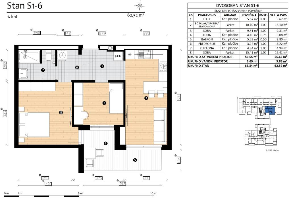
HERITAGE -Nova era stanovanja na TrešnjevciTrešnjevka, na atraktivnoj lokaciji gradi se HERITAGE, zgrada s ukupno 110 stanova. Savršen spoj udobnosti i luksuza dostupan svima. Planirano useljenje- veljača 2027.Stan S1-6trosoban stan na prvom katu zatvorene površine 56,65 m2 s balkonim 5,59 m2 (2,80 m2) i loggiom 4.10 (3.08 ) ukupno obračunski neto korisne površine 62.52 m2.Sastoji se od ulaznog hodnika, open space dnevnog boravka, blagovaonice i kuhinje, loggie, balkona, predsoblja, kupaonice i dvije spavaće sobe.Obvezna kupnja garažnog parkirnog mjesta te mogućnost kupnje spremišta.Zgrada će biti izgrađena po visokim standardima:sustav ETICS, završni sloj silikatna žbuka proizvođača ROFIXtoplinska izolacija 15 cm mineralna vuna Rockwoolaluminijske vanjske klupčice u boji stolarijevanjska stolarija PVC s trostrukim IZO staklomtoplinski izolirane aluminijske električne roletekomarnicidizalo KONE za 13 osoba,moderna i luksuzna kabinavideonadzor ulaza u zgradu i garažuunutarnja stolarija visina 220 cm, skriveni panti, magnetska bravaulazna vrata protuprovalna i protudimna, zvučno izoliranapodovi sanitarne prostorije, loggie i kuhinje obloženo keramičkim pločicama I klase, podovi svih ostalih prostorija obloženi sa gotovim višeslojnim hrastovim parketom proizvođača Moparsva sanitarna oprema je visoke kvalitete poznatih svjetskih proizvođača (HANSGROHE, LAUFEN, IDEAL STANDARD)ugradbeni TECE vodokotlićigrijanje i priprema potrošne tople vode preko Vaillant ili Bosch kondenzacijskog plinskog bojlerapodno grijanje svih prostorijatermostati podnog grijanja u svim prostorijamainverter klima uređaj Samsung i ToshibaLokacija u blizini škole, vrtića...Za sve dodatne informacije stojimo na raspolaganju.... Više na eurovilla.hr, ID: 491354
Ako želite znati više, možete razgovarati s Nenad Tatarinov.
Značajke
Vrsta
Stan
Ugovor
Prodaja
Kat
1
Površina
62 m²
Prostorije
2
Spavaće sobe
2
Balkon
Da
Detalji površine

Stambeni prostor

Kat
1
Površina
62,5 m²
Koeficijent
100%
Vrsta površine
Glavni
Komercijalna površina
62,5 m²
Informacije o cijeni
Cijena
€ 293.844
Cijena po m²
4.739 €/m²
Energetska učinkovitost
  • Stanje

    Novo / U izgradnji
  • Energetski certifikat

    Oslobođeno
Tlocrt
Otkrijte svaki kutak nekretnine
+39
Dodatne mogućnosti

Obratite se oglašivaču

Ili