Trosobni stan Blato, Novi Zagreb - Zapad, Blato, Zagreb

€ 253.894
3
68 m²
1
1
Da

Bilješka

Oglas ažuriran 09. 04. 2026.
Opis

referenca: 62

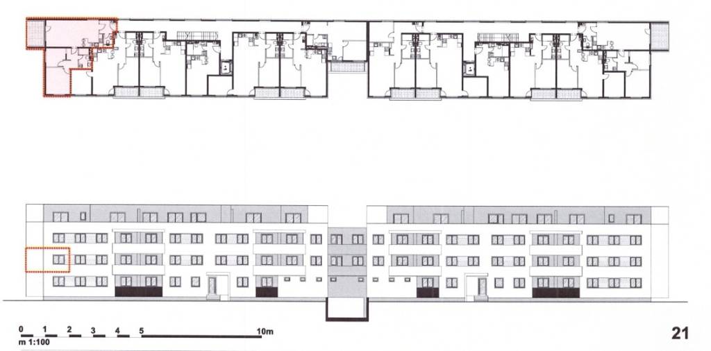
Stan B11, 3-sobni, novogradnja, Zagreb-Blato

Prodajemo stanove u modernoj novogradnji u zagrebačkom naselju Blato, u Ulici Jurja Njavre.
U ponudi su funkcionalni i suvremeno projektirani stanovi u stambenoj zgradi koja se sastoji od dva ulaza (ulaz A i ulaz B). Zgrada je katnosti: podrum, prizemlje, dva kata i uvučeni kat, s ukupno 40 stambenih jedinica.

Stan B11: 3-sobni, 1. kat, neto korisne površine 68,62 m2, sastoji se od ulaznog prostora, dnevnog boravka s kuhinjom i blagovaonicom, dvije spavaće sobe, kupaonice, WC-a i loggie.
Parkirno mjesto i spremište nisu uključeni u cijenu stana.

Vanjsko parkirno mjesto: 15.000 €
Parkirno garažno mjesto: 25.000 €
Spremište B.0.11.: 4.847,00 €

Sve navedene cijene su s uključenim PDV-om.

Kupac ne plaća agencijsku proviziju.

O zgradi
Objekt se gradi prema najnovijim standardima gradnje – protupotresna armirano-betonska konstrukcija, vrhunska toplinska i zvučna izolacija te pažljivo birani materijali visoke kvalitete koji osiguravaju dugotrajnost, sigurnost i energetsku učinkovitost.
Zgrada se nalazi na dobro prometno povezanoj lokaciji, u blizini svih važnih sadržaja (škole, vrtići, trgovine, javni prijevoz).

Karakteristike zgrade:
40 stanova (jednosobni, dvosobni, trosobni, četverosobni)
22 garažna parkirna mjesta na etaži podruma
29 vanjskih parkirnih mjesta
Ostave na etaži prizemlja
Suvremeni sustav grijanja
Lift
Energetski učinkovita gradnja
Moderan arhitektonski dizajn

Oprema i tehničke značajke:
PVC stolarija s troslojnim IZO staklom
Protuprovalna i protupožarna ulazna vrata
Plinsko etažno radijatorsko grijanje
Kvalitetna keramika i sanitarije renomiranih proizvođača
Klimatizacija
Video portafon
Stanovi pristupačni i prilagodljivi osobama smanjene pokretljivosti

Početak gradnje: 04/2026
Dovršetak gradnje: 12/2027

Za više informacija kontaktirajte nas na info@viana-nekretnine.hr ili 099 2281 882.

Viana nekretnine d.o.o.
Ulica Roberta Frangeša – Mihanovića 9, Zagreb

ID CODE: 62

Ivana Coc
Agent s licencom / ovlašteni arhitekt
Mob: +385 99 2281 882
E-mail: info@viana-nekretnine.hr
www.viana-nekretnine.hr
Značajke
Vrsta
Stan
Ugovor
Prodaja
Kat
1 kat
Katovi zgrade
3
Dizalo
Da
Površina
68 m²
Prostorije
3
Spavaće sobe
3
Kupaonice
1
Balkon
Ne
Terasa
Ne
Grijanje
Centralno, podno grijanje
Klimatizacija
Samostalno, hlađenje/grijanje
Informacije o cijeni
Cijena
€ 253.894
Cijena po m²
3.734 €/m²
Energetska učinkovitost

Potrošnja energije

A+

Tlocrt
Otkrijte svaki kutak nekretnine
+6
Dodatne mogućnosti

Obratite se oglašivaču

Ili