Trosobni stan Mandre, Kolan, Kolan

€ 425.000
3
72 m²
1
PR
Ne
Balkon
Terasa

Bilješka

Oglas ažuriran 02. 04. 2026.
Opis

referenca: 7529

PAG, MANDRE, STAN U NOVOGRADNJI PRVI RED DO MORA

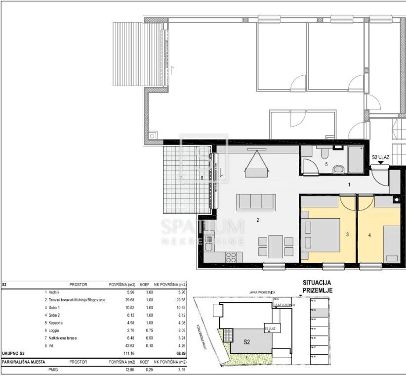
PAG, MANDRE, u ponudi je stan S2 smješten u prizemlju moderne novogradnje s ukupno osam stambenih jedinica. Ovaj dvosobni stan ima dodatnu vrijednost privatnog vrta koji pruža osjećaj mira i privatnosti te omogućuje ugodan boravak na otvorenom i uživanje u mediteranskom načinu života.

Projekt je pažljivo osmišljen i raspoređen na tri etaže – prizemlje, prvi i drugi kat – pri čemu je posebna pažnja posvećena orijentaciji stanova kako bi svaki od njih imao otvoren pogled na more. Zgrada se nalazi na jednoj od najatraktivnijih lokacija u Mandrama, svega nekoliko koraka od mora te u neposrednoj blizini svih važnih sadržaja poput trgovina, restorana i barova.

Stan se sastoji od dvije prostrane spavaće sobe, kupaonice s podnim grijanjem te prozračnog dnevnog prostora koji objedinjuje kuhinju, blagovaonicu i dnevni boravak. Iz dnevnog dijela izlazi se na natkrivenu terasu s koje se pruža pogled na more, dok privatni vrt dodatno proširuje prostor za opuštanje i boravak na otvorenom.

U izgradnji i opremanju korišteni su vrhunski materijali i oprema kako bi se osigurala visoka razina udobnosti i kvalitete stanovanja. Ugrađena je aluminijska stolarija Schüco, u cijeloj zgradi postavljene su keramičke pločice renomiranog proizvođača Marazzi, dok su sanitarije opremljene slavinama više linije brenda Hansgrohe. Stan ima podno grijanje s mogućnošću WiFi upravljanja, električne rolete te klima uređaje više klase u svakoj prostoriji. Cijela zgrada opremljena je videonadzorom radi dodatne sigurnosti.

Uz stan dolazi i vlastito parkirno mjesto.
Predviđeni završetak radova i useljenje: početkom 2026.

Mandre su turističko središte Općine Kolan, smješteno na južnoj strani otoka Paga sa prekrasnim pogledom na Silbu i Olib te na otočiće Maun i Škrdu koji obiluju uvalama i prekrasnim plažama. Smještene na samoj obali, Mandre krase 3 kilometra duge šljunčane plaže.

Za sve ostale informacije obratite se s povjerenjem.

Sanjin Latinčić
agent s licencom
+385 91 28 99 599
sanjin@spatium.hr

Goran Božić
Agent s licencom
+385 98 186 5413
goran@spatium.hr

Spatium nekretnine
+385 51 272 903
info@spatium.hr

ID CODE: 7529

Sanjin Latinčić
Agent s licencom
Mob: +385 91 289 9599
Tel: +385 51 272 903
E-mail: sanjin@spatium.hr
www.spatium.hr

Goran Božić
Agent s licencom
Mob: +385 98 186 5413
Tel: +385 51 272 903
E-mail: goran@spatium.hr
www.spatium.hr
Značajke
Vrsta
Stan
Ugovor
Prodaja
Kat
Prizemlje
Katovi zgrade
2
Dizalo
Ne
Površina
72 m²
Prostorije
3
Spavaće sobe
2
Kupaonice
1
Balkon
Da
Terasa
Da
Garažno mjesto, parkirna mjesta
1 na zajedničkom parkingu
Klimatizacija
Samostalno, hlađenje/grijanje
Ostale karakteristike
  • Alarmni sustav
Informacije o cijeni
Cijena
€ 425.000
Cijena po m²
5.903 €/m²
Energetska učinkovitost
  • Godina izgradnje

    2026
  • Klima uređaj

    Samostalno, hlađenje/grijanje
  • Energetski certifikat

    Neklasificirano
Tlocrt
Otkrijte svaki kutak nekretnine
+2
Dodatne mogućnosti

Obratite se oglašivaču

Ili