Dvosobni stan Rašenički put, Donja Kustošija, Zagreb

€ 309.900
2
62 m²
2
Balkon

Bilješka

Oglas ažuriran 27. 04. 2026.
Opis

referenca: EUROVILLA-207728

Zagreb, Rudeš, trosoban stan 59,43 m² na 2. katu novije zgrade i vanjsko parkirno mjesto

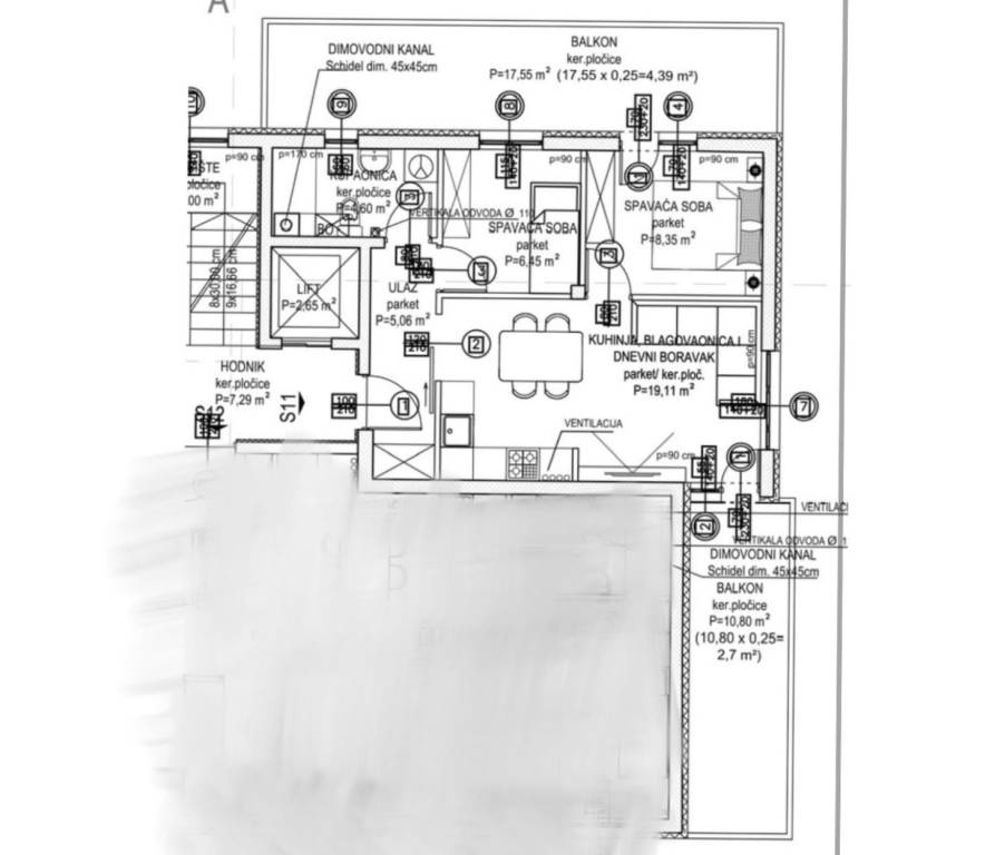
Zagreb, Rudeš, trosoban stan na 2. katu stambene zgrade novije gradnje zatvorene površine 43,81 m2 s balkonom 17,54 m2 (8,77 m2), balkonom 10,77 m2 (5,39 m2), spremištem 1,95 m2 (1,46 m2) i vanjskim parkirnim mjestom 12,50 m2 (3,13 m2), ukupne neto korisne površine 62.56 m2.Sastoji se od ulaznog hodnika, dnevnog boravka s kuhinjom i blagovaonicom, dvije spavaće sobe, kupaonice i dva balkona. Pripadci stanu vanjsko nenatkriveno parkirno mjesto i spremište u podrumu. Prodaje se kompletno namješten.Stan se nalazi u višestambenoj stambenoj zgradi. Moderna i kvalitetna novija gradnja u mirnoj i tihoj ulici. Blizina osnovne škole, dječjeg vrtića, trgovine i autobusne stanice.Ostale informacije na upit.... Više na eurovilla.hr, ID: 207728
Ako želite znati više, možete razgovarati s Andrej Vučković.
Značajke
Vrsta
Stan
Ugovor
Prodaja
Kat
2
Površina
62 m²
Prostorije
2
Spavaće sobe
2
Balkon
Da
Detalji površine

Stambeni prostor

Kat
2
Površina
62,6 m²
Koeficijent
100%
Vrsta površine
Glavni
Komercijalna površina
62,6 m²
Informacije o cijeni
Cijena
€ 309.900
Cijena po m²
4.998 €/m²
Energetska učinkovitost
  • Energetski certifikat

    Oslobođeno
Tlocrt
Otkrijte svaki kutak nekretnine
+6
Dodatne mogućnosti

Obratite se oglašivaču

Ili