Četverosobni stan novo, prizemlje, Rudeš - Ljubljanica, Zagreb

€ 292.000
4
68 m²
1
PR
Ne

Bilješka

Oglas ažuriran 27. 03. 2026.
Opis

referenca: I35182

NOVOGRADNJA, STAN, PRODAJA, RUDEŠ
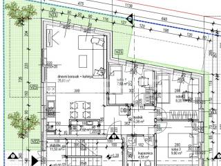
Prodaje se 4S stan u prizemlju zgrade od 2kata sa 3 stana.
Stan je unutarnje površine 63m2, a zajedno sa vrtom od 50-tak m2 obračunato po koeficijentu je 68m2. Kvalitetna gradnja i vrhunski materijali ( hansgrohe sanitarije, hrastov parket 1. klase, dizalice topline ) . Obavezna kupnja spremišta i vanjskog parkirnog mjesta. Završetak je planiran za kraj 2026 godine. Za više informacija stojimo na raspolaganju!
Značajke
Vrsta
Stan
Ugovor
Prodaja
Kat
Prizemlje
Dizalo
Ne
Površina
68 m²
Prostorije
4
Spavaće sobe
3
Kupaonice
1
Namješteno
Ne
Garažno mjesto, parkirna mjesta
1 na zajedničkom parkingu
Grijanje
Samostalno, napajanje električnom energijom
Klimatizacija
Hlađenje/grijanje
Informacije o cijeni
Cijena
€ 292.000
Cijena po m²
4.294 €/m²
Energetska učinkovitost

Potrošnja energije

A+

Otkrijte svaki kutak nekretnine
+6
Dodatne mogućnosti

Obratite se oglašivaču

Ili