Trosobni stan Donji Kraj, Poljanice - Dubec, Zagreb

€ 330.000
3
87 m²
1
2
Terasa
Namješteno

Bilješka

Oglas ažuriran 16. 03. 2026.
Opis

referenca: EK-2886069

Prodaja - Trosobni stan - Gornja Dubrava - Oporovec - 87m2

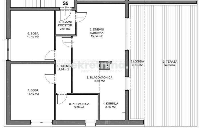
Na prodaju je moderan trosoban penthouse ukupne površine 87,11 m², smješten na drugom katu manje stambene zgrade novije gradnje (2015.) u mirnoj i slijepoj ulici u Oporovcu, Gornja Dubrava.

Stan se sastoji od ulaznog prostora, prostranog dnevnog boravka s blagovaonicom i kuhinjom, hodnika, dvije spavaće sobe, kupaonice te velike terase koja pruža lijep i otvoren pogled.

Nekretnina je potpuno namještena i uređena kvalitetnim materijalima, a zahvaljujući velikim otvorima i dobroj orijentaciji stan je vrlo svijetao i ugodan za boravak.

Lokacija je mirna i okružena prirodom – ulica je slijepa, s vrlo malo prometa, a iza zgrade se nalazi šuma. U blizini su svi potrebni sadržaji za svakodnevni život poput trgovina, škole, vrtića i javnog prijevoza.

Osnovne karakteristike:

površina: 87,11 m²
trosoban stan
velika terasa
dvije spavaće sobe
potpuno namješten
klima uređaj
energetski razred A+
2 parkirna mjesta
zgrada iz 2015. godine
zadnja renovacija 2023.

Odlična nekretnina za miran obiteljski život, ali i kao dugoročna investicija.

Za dodatne informacije i dogovor oko razgledavanja
+385911222121
+38517710177
info@nekretnina.hr
nekretnina.hr
Ulica kralja Zvonimira 52
Ako želite znati više, možete razgovarati s Ante Berišić.
Značajke
Vrsta
Penthouse | Puno vlasništvo | Luksuzna nekretnina
Ugovor
Prodaja
Kat
2
Katovi zgrade
2
Površina
87 m²
Prostorije
3
Spavaće sobe
2
Kuhinja
Kuhinja s blagovaonicom
Kupaonice
1
Namješteno
Da
Terasa
Da
Garažno mjesto, parkirna mjesta
2 na zajedničkom parkingu
Grijanje
Samostalno, radijatori, na plinski pogon
Klimatizacija
Samostalno
Ostale karakteristike
  • Orijentacija prema van
  • Protuprovalna vrata
  • Ugradbeni ormar
Detalji površine

Stambeni prostor

Kat
2
Površina
87,0 m²
Koeficijent
100%
Vrsta površine
Glavni
Komercijalna površina
87,0 m²
Informacije o cijeni
Cijena
€ 330.000
Cijena po m²
3.793 €/m²
Energetska učinkovitost

Potrošnja energije

≥ 250 kWh/m² godinaA

Otkrijte svaki kutak nekretnine
+27
Dodatne mogućnosti

Obratite se oglašivaču

Ili