Jednosobni stan izvrsno stanje, prvi kat, Vrbik - Cvjetno naselje, Zagreb

€ 175.000
1
38 m²
1
1
Ne

Bilješka

Oglas ažuriran 17. 03. 2026.
Opis

referenca: iro-699161

ZAGREB - TRNJE, PRODAJE SE DVOSOBNI STAN OD 38M2, POTPUNO RENOVIRAN, LOKACIJA!!!

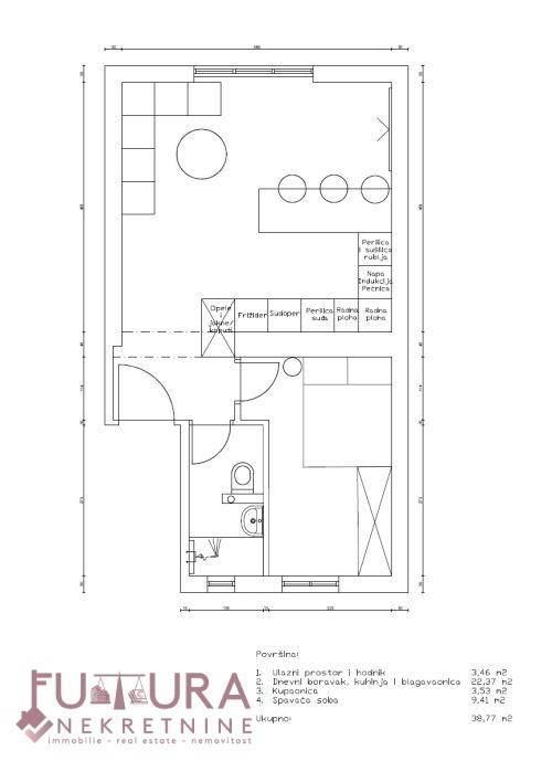
Zagreb - Trnje, prodaje se dvosobni stan od 38 m2 na prvom katu stambene zgrade izgrađene 1939. godine te u potpunosti adaptiran 2026. godine.

Sastoji se od jedne spavaće sobe, kuhinje s blagovaonicom i dnevnim boravkom te kupaonice.

Stan je kompletno adaptiran; promijenjene su instalacije u cijelom stanu (struja i voda), postavljena su nova protuprovalna vrata, dvoslojna PVC stolarija s komarnicima, kao i sva nova sobna vrata. Postavljen je višeslojni parket sa širokim bijelim lajsnama, novi radijatori i klima-uređaj, nova kupaonica i sanitarije, čime je zamijenjen doslovno svaki zamjenjivi segment u stanu.

Idejno rješenje za uređenje prikazano je na slikama.

Planirani završetak radova: 05.05.2026.

Moguć je izbor podnih obloga i sanitarija ukoliko se kupnja odvije unutar roka adaptacije.

Cijena stana prije dovršetka adaptacije iznosi 175.000,00 EUR (vrijedi isključivo za gotovinsko plaćanje).
Cijena stana nakon adaptacije iznosit će 185.000,00 EUR.

Lokacija stana je izvanredna, u neposrednoj blizini svih ključnih sadržaja.

Dokumentacija uredna.
Ako želite znati više, možete razgovarati s Luka Dzeletovic.
Značajke
Vrsta
Stan | Prosječna klasa nekretnine
Ugovor
Prodaja
Kat
1 kat
Dizalo
Ne
Površina
38 m²
Prostorije
1
Spavaće sobe
1
Kupaonice
1
Balkon
Ne
Terasa
Ne
Grijanje
Samostalno, zrak
Klimatizacija
Samostalno
Informacije o cijeni
Cijena
€ 175.000
Cijena po m²
4.605 €/m²
Energetska učinkovitost
  • Godina izgradnje

    1939
  • Stanje

    Izvrsno / Renovirano
  • Grijanje

    Samostalno, zrak
  • Klima uređaj

    Samostalno
Otkrijte svaki kutak nekretnine
+5
Dodatne mogućnosti

Obratite se oglašivaču

Ili