Dvosobni stan Trnje, Kanal - Sigečica, Zagreb

€ 165.000
2
34 m²
1
PR
Ne

Bilješka

Oglas ažuriran 14. 04. 2026.
Opis

referenca: 5963

Trnje, dvosoban renoviran stan, 34 m2

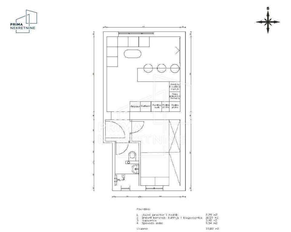
U ponudi je novouređen, u potpunosti adaptiran dvosoban stan ukupne stambene površine 34 m2, smješten u prizemlju od ukupno tri kata zgrade bez lifta na Trnju.

Sastoji se od ulaznog prostora i hodnika (2,29 m2), dnevnog boravka, blagovaonice i kuhinje (18,59 m2), spavaće sobe (9,54 m2), kupaonice s WC-om (3,40 m2).

Kompletno je adaptiran; promijenjene su instalacije u cijelom stanu (struja i voda), postavljena nova protuprovalna vrata, dvoslojna PVC stolarija s komarnicima kao i sva nova sobna vrata. Postavljen je višeslojni parket sa širokim bijelim lajsnama, novi radijatori i klima uređaj, nova kupaonica i sanitarije čime je zamijenjen doslovno svaki zamjenjivi segment u stanu.

Nalazi se u neposrednoj blizini svih ključnih sadržaja.

Idejno rješenje za uređenje prikazano na slikama.

Planirani završetak radova je svibanj 05.05.2026.

Moguć je izbor podnih obloga i sanitarija ukoliko se kupnje odvije unutar roka adaptacije.

Cijena stana prije dovršetka adaptacije iznosi 165.000,00 EUR (vrijedi isključivo za gotovinsko plaćanje).
Cijena stana nakon adaptacije iznosit će 175.000,00 EUR.

ID CODE: 5963
Značajke
Vrsta
Stan
Ugovor
Prodaja
Kat
Prizemlje
Katovi zgrade
3
Dizalo
Ne
Površina
34 m²
Prostorije
2
Spavaće sobe
1
Kupaonice
1
Balkon
Ne
Terasa
Ne
Grijanje
Samostalno, radijatori
Klimatizacija
Samostalno, hlađenje/grijanje
Ostale karakteristike
  • Protuprovalna vrata
Informacije o cijeni
Cijena
€ 165.000
Cijena po m²
4.853 €/m²
Energetska učinkovitost
  • Godina izgradnje

    1939
  • Grijanje

    Samostalno, radijatori
  • Klima uređaj

    Samostalno, hlađenje/grijanje
  • Energetski certifikat

    Neklasificirano
Tlocrt
Otkrijte svaki kutak nekretnine
+4
Dodatne mogućnosti

Obratite se oglašivaču

Ili