Trosobni stan novo, Gornji Stenjevec, Zagreb

€ 291.178
3
66 m²
1
Da

Bilješka

Oglas ažuriran 18. 04. 2026.
Opis

referenca: iro-4512

BEZ PROVIZIJE***PODSUSED/odlična novogradnja stan S2 prizemlje 67m2+parking!

MOLIMO ZVATI: 098 18 38 174

NOVOGRADNJA!
KUPNJA DIREKTNO OD INVESTITORA!
BEZ PROVIZIJE ZA KUPCA!

Odlična mikro-lokacija!
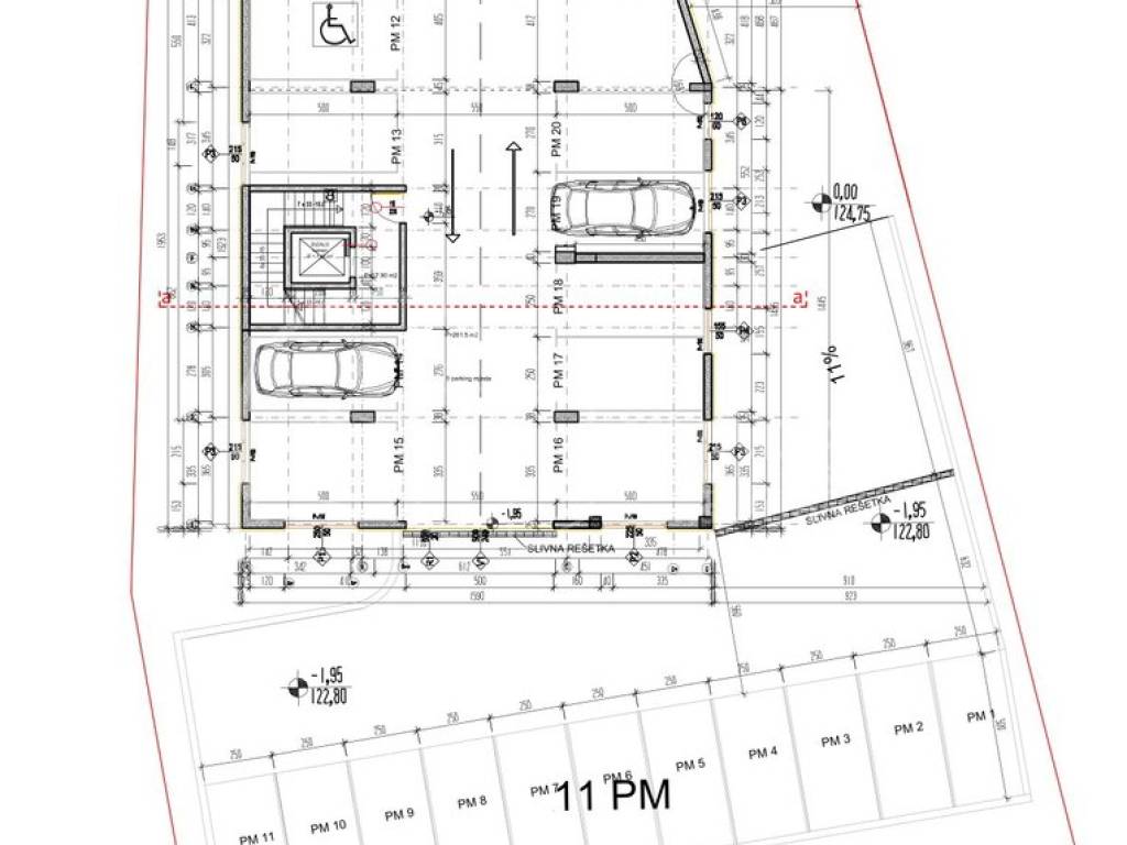
Podsused, prodajemo stan u izgradnji u prizemlju u zgradi sa 3 kata. U zgradi ima ukupno 15 stanova, 11 VPM (vanjskih parkirnih mjesta i 10 GPM (garažnih parkirnih mjesta na -1 etaži)
Objekt se nalazi u centru Podsuseda u blizini svih sadržaja: pošta, banke, trgovine, restorani, tržnica, benzinska postaja.

Zgrada ima LIFT koji povezuje garažu na -1 etaži sa svim ostalim etažama.

Konstrukciju zgrade čini sustav armirano-betonskih zidova, stropnih ploča i temeljenja.
Visoka kvaliteta gradnje: Energetski certifikat A+.

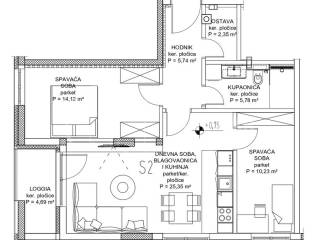
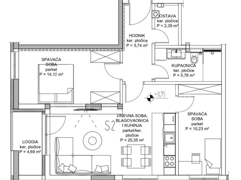
Stan S2 u prizemlju sadrži:

- hodnik
- Dnevni boravak + kuhinja + blagovaona,
- dvije spavaće sobe
- kupaonica sa WC-om
- ostava
- lođa (4.49m2)




ukupno stan S2 bruto = 68,26m2

ukupno stan S2 neto obračunski = 66,94 m2

CIJENA: 4.350 €/m2
UKUPNO NETO OBRAČUNSKI (stan): 66,94m2 x 4.350 €/m2 = 291.178 EURA



PARKIRNA MJESTA (nadoplata na cijenu stana):

VPM (vanjska parkirna mjesta): 12.5m2 x 1.200€/m2 = 15.000€ (FIKSNO)

GPM (garažna parkirna mjesta na etaži -1)
od 12,50m2 do 16.75m2 po cijeni 2.236€/m2

OBAVEZNA JE KUPNJA VPM ili GPM



Grijanje stana:
- plinsko etažno / radijatori
- klima uređaj


Hlađenje stana:
- klima uređaj

Dokumentacija:
- vlasnički list
- građevinska dozvola

Za više informacija:
mob: 098 18 38 174
mail: info@kvadar-nekretnine.hr
www.kvadar-nekretnine.hr
Ako želite znati više, možete razgovarati s Kvadar Zagreb.
Značajke
Vrsta
Stan | Prosječna klasa nekretnine
Ugovor
Prodaja
Katovi zgrade
3
Dizalo
Da
Površina
66 m²
Prostorije
3
Spavaće sobe
3
Kupaonice
1
Balkon
Ne
Terasa
Ne
Grijanje
Samostalno, zrak
Klimatizacija
Samostalno
Informacije o cijeni
Cijena
€ 291.178
Cijena po m²
4.412 €/m²
Energetska učinkovitost

Potrošnja energije

A+

Otkrijte svaki kutak nekretnine
+3
Dodatne mogućnosti

Obratite se oglašivaču

Ili