Obiteljska kuća Plovanija, Zadar, Plovanija - Vidikovac, Zadar

€ 1.020.000
5+
210 m²
3
Ne
Terasa

Bilješka

Oglas ažuriran 29. 04. 2026.
Opis

referenca: 1244

ZADAR - PLOVANIJA - Luksuzna obiteljska vila s panoramskim pogledom - 210m2

PLOVANIJA – Luksuzna vila katnica s panoramskim pogledom na more i otoke (210 m²)

U mirnom i atraktivnom dijelu Zadra, u naselju Plovanija, smještena na blagoj uzvisini s očaravajućim panoramskim pogledom na more i otoke, nalazi se ova elegantna četverosobna vila vrhunske kvalitete.

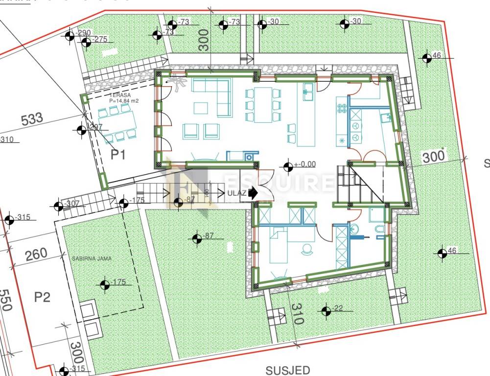
Vila se prostire na dvije etaže i pažljivo je osmišljena kako bi pružila maksimalnu udobnost i funkcionalnost. Prizemlje obuhvaća prostrani dnevni boravak s izlazom na terasu, kuhinju povezanu s blagovaonicom te ulazni prostor. Na istoj etaži nalaze se i dodatne prostorije: smočnica, praonica rublja, kupaonica, spremište, garderoba te jedna spavaća ili radna soba.

Unutarnje stubište vodi na kat gdje su smještene tri dodatne spavaće sobe. Glavna (master) soba raspolaže vlastitom kupaonicom, garderobom i privatnom terasom, dok preostale dvije sobe koriste zajedničku kupaonicu.

U suterenu se nalazi garaža, a vila je sa svih strana okružena uređenim vrtom površine 332 m². Arhitektonski je oblikovana kaskadno, prateći prirodnu konfiguraciju terena, čime dodatno naglašava svoju ekskluzivnost i otvorenost prema pogledu.

Vila je opremljena centralnim grijanjem putem dizalice topline, ugrađene su tri klimatizacijske jedinice, a na raspolaganju je i dimnjak kao dodatna opcija grijanja. U dvorištu se nalaze dva vanjska parkirna mjesta te prostrana garaža površine 36 m².

Ova nekretnina predstavlja idealan spoj luksuza, komfora i vrhunske lokacije, savršena za miran obiteljski život ili kao investicija.

ID CODE: 1244

Anja Glavočević
Agent s licencom
Mob: +385 99 755 3336
E-mail: anja@esquire.hr
www.esquire.hr
Značajke
Vrsta
Obiteljska kuća
Ugovor
Prodaja
Katovi zgrade
1
Dizalo
Ne
Površina
210 m²
Prostorije
5+
Spavaće sobe
4
Kupaonice
3
Balkon
Ne
Terasa
Da
Garažno mjesto, parkirna mjesta
1 u garaži, 3 na zajedničkom parkingu
Grijanje
Samostalno, zrak
Klimatizacija
Samostalno, hlađenje/grijanje
Informacije o cijeni
Cijena
€ 1.020.000
Cijena po m²
4.857 €/m²
Energetska učinkovitost
  • Godina izgradnje

    2026
  • Grijanje

    Samostalno, zrak
  • Klima uređaj

    Samostalno, hlađenje/grijanje
  • Energetski certifikat

    Neklasificirano
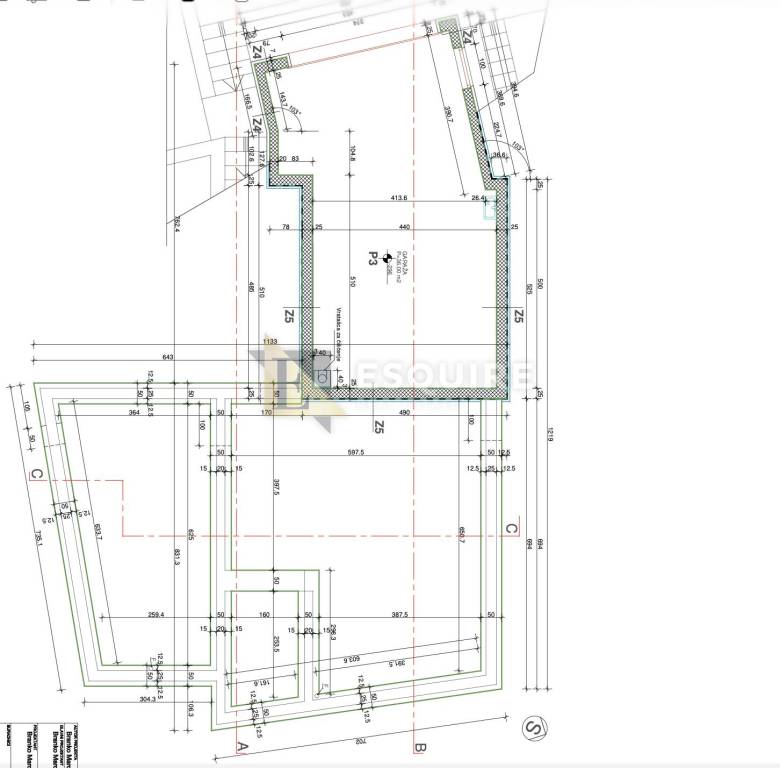
Tlocrt
Otkrijte svaki kutak nekretnine
+34
Dodatne mogućnosti

Obratite se oglašivaču

Ili