Četverosobni stan Mikulići, Črnomerec, Gornja Kustošija, Zagreb

€ 605.000
4
137 m²
2
1
Ne
Balkon

Bilješka

Oglas ažuriran 30. 04. 2026.
Opis

referenca: 3-74450

Zagreb - Mikulići četvorosoban dvoetažni stan s garažom

RE/MAX Centar nekretnina u Zagrebu iz ponude izdvaja, novogradnju, dvoetažni četverosoban stan s garažom u mirnom predjelu Mikulića.

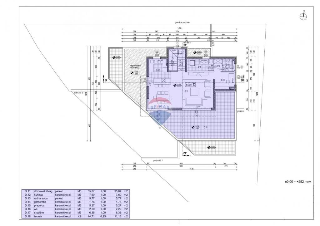
Stan ukupne površine 137,61 m² (177,64 m² bez koeficijenata) pruža se na 1. katu i 2. katu novoizgrađene dvojne kuće te se sastoji od:

1. kat: tri spavaće sobe (12,01 / 11,75 / 12,88 m²), dvije kupaonice, garderoba (4,97 m²) i balkon (8,67 m²).

2. kat: prostrani dnevni boravak s blagovaonicom (35,87 m²), kuhinja (7,60 m²), radna soba (5,77 m²), praonica (5,27 m²), garderoba (1,76 m²), WC (2,29 m²) i terasa (44,71 m²).

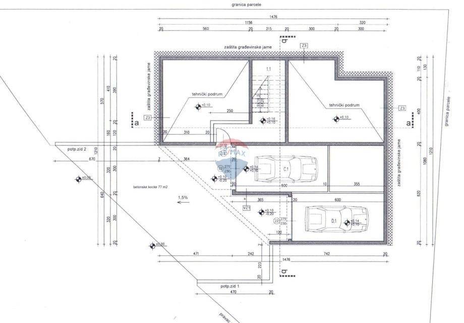
U prizemlju se nalazi zasebna garaža namijenjena isključivo ovom stanu površine 14,5 m² sa širinom ulaza 2,75 m

Nekretnina se prodaje u stanju visokog roh-baua.

Mirna stambena ulica, odlična prometna povezanost autobusom, u blizini trgovina i svih potrebnih svakodnevnih sadržaja.

ID CODE: 3-74450

Danijel Balaban
Prodajni predstavnik
Mob: +385 91 641 0056
Tel: +385 1 670 1704
E-mail: d.balaban@remax-centar.hr
remax-centarnekretnina.com
Značajke
Vrsta
Stan
Ugovor
Prodaja
Kat
1 kat
Katovi zgrade
2
Dizalo
Ne
Površina
137 m²
Prostorije
4
Spavaće sobe
3
Kupaonice
2
Balkon
Da
Terasa
Ne
Garažno mjesto, parkirna mjesta
1 u garaži
Klimatizacija
Samostalno, hlađenje/grijanje
Informacije o cijeni
Cijena
€ 605.000
Cijena po m²
4.416 €/m²
Energetska učinkovitost
  • Godina izgradnje

    2026
  • Klima uređaj

    Samostalno, hlađenje/grijanje
  • Energetski certifikat

    Neklasificirano
Tlocrt
Virtualni obilazak
Otkrijte svaki kutak nekretnine
+15
Dodatne mogućnosti

Obratite se oglašivaču

Ili