Dvosobni stan Ivanečka, Knežija - Srednjaci, Zagreb

€ 315.054
2
68 m²
6
Balkon

Bilješka

Oglas ažuriran 03. 03. 2026.
Opis

referenca: EUROVILLA-688140

Zagreb, Trešnjevka, HERITAGE, trosobni stan NKP 69m2

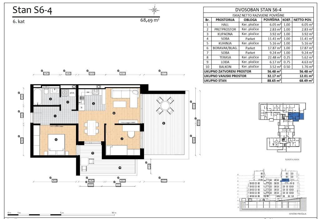
HERITAGE - Nova era stanovanja na TrešnjevciTrešnjevka, na atraktivnoj lokaciji gradi se HERITAGE, zgrada s ukupno 110 stanova. Savršen spoj udobnosti i luksuza dostupan svima. Planirano useljenje veljača- 2027.Stan S6-4 trosoban stan na šestom katu zatvorene površine 56,48 m2 s terasom 22,48 m2 (5,62) ukupno obračunski NKP 68,49 m2.Sastoji se od ulaznog hodnika, jedne kupaonice i vešeraja, dnevnog boravka spojenog s blagovaonicom i kuhinjom, balkona i lođe, roditeljske spavaće sobe i jednom dječjom spavaćom sobom.Obavezna kupnja parkirnog garažnog mjesta i mogućnost kupnje spremišta.Zgrada će biti izgrađena po visokim standardima:sustav ETICS, završni sloj silikatna žbuka proizvođača ROFIXtoplinska izolacija 15 cm mineralna vuna Rockwoolaluminijske vanjske klupčice u boji stolarijevanjska stolarija PVC s trostrukim IZO staklomtoplinski izolirane aluminijske električne roletekomarnicidizalo KONE za 13 osoba,moderna i luksuzna kabinavideonadzor ulaza u zgradu i garažuunutarnja stolarija visina 220 cm, skriveni panti, magnetska bravaulazna vrata protuprovalna i protudimna, zvučno izoliranapodovi sanitarne prostorije, loggie i kuhinje obloženo keramičkim pločicama I klase, podovi svih ostalih prostorija obloženi sa gotovim višeslojnim hrastovim parketom proizvođača Moparsva sanitarna oprema je visoke kvalitete poznatih svjetskih proizvođača (HANSGROHE, LAUFEN, IDEAL STANDARD)ugradbeni TECE vodokotlićigrijanje i priprema potrošne tople vode preko Vaillant ili Bosch kondenzacijskog plinskog bojlerapodno grijanje svih prostorijatermostati podnog grijanja u svim prostorijamainverter klima uređaj Samsung i ToshibaLokacija u blizini škole, vrtića...Za sve ostale informacije budite slobodni kontaktirati.... Više na eurovilla.hr, ID: 688140
Ako želite znati više, možete razgovarati s Nenad Tatarinov.
Značajke
Vrsta
Stan
Ugovor
Prodaja
Kat
6
Površina
68 m²
Prostorije
2
Spavaće sobe
2
Balkon
Da
Detalji površine

Stambeni prostor

Kat
6
Površina
68,5 m²
Koeficijent
100%
Vrsta površine
Glavni
Komercijalna površina
68,5 m²
Informacije o cijeni
Cijena
€ 315.054
Cijena po m²
4.633 €/m²
Energetska učinkovitost
  • Stanje

    Novo / U izgradnji
  • Energetski certifikat

    Oslobođeno
Tlocrt
Otkrijte svaki kutak nekretnine
+15
Dodatne mogućnosti

Obratite se oglašivaču

Ili