Trosobni stan novo, drugi kat, Staro Brestje, Zagreb

€ 201.150
3
70 m²
2
2

Bilješka

Oglas ažuriran 29. 10. 2025.
Opis

referenca: 949

SESVETE- NOVOGRADNJA-stan +vrt+lođa+VPM -70,77 m2-uv.kat

SESVETE-NOVOGRADNJA U IZGRADNJI
MF3-stan 3 -uvučeni kat + VPM + VRT
Novogradnja s tri ulaza i ukupno devet stanova.
Svaki ulaz ima prizemlje, kat i uvučeni kat.
Na svakoj etaži je samo jedan stan
Stolarija: antracit - bijela s komarnicima- aluminijske rolete s el. podizaćima i komarnicima
Grijanje: dizalice topline-podno i grijanje vode. Svaka prostorija ima svoj regulator topline.
Hlađenje: klima uređaj
A+ certifikat- kamena vuna 15 cm (ETICS 15 sm)
Konstrukcija: armirano-betonska i zidana
Stubište: Kamen
Vrhunski gotovi hrastov parket koji ima mogućnost brušenja i lakiranja u budućem razdoblju.
Kupaonica: vrhunska keramika (kupac može napraviti svoj odabir)
Video portafon
Krov: ravni, na kojem su smještene vanjske jedinice dizalica topline i klimatizacijskih uređaja
Vanjsko parkirno mjesto u vlasništvu.
Garancije:
Za uređaje prema garantnim rokovima
Za obrtničke radove 2 godine
Za krov i konstrukcijske radove 10 godina.
Nalazi se u mirnom okruženju u sjevernom dijelu K. Novaka, u blizini škole, vrtića, od centra Sesveta udaljen cca 1500 m. Udaljenost do glavne prometnice Sesvete- Sesvetski Kraljevec cca 400 m.
Cijena je izražena s PDV-om, kupac ne plaća porez na promet nekretnina.
Predviđeni rok završetka objekta je jesen 2026. godine, dakle najkasnije 31.12.2026.


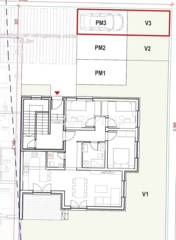
ZGRADA MF3 STAN 3 - uvučeni kat


predprostor 2,42
dnevni prostor 25,24 m2
kuhinja 6,00 m2
predsoblje 2,76 m2
kupaona 5,29 m2
spavaća soba 10,31 m2
dječja soba 8,91 m2


POSEBNI DIO 3 UKUPNO 60,93 m2 ( zatvoreni dio stambenog prostora)


SPOREDNI DIO 3
terasa a površine 6,20 m2 x 0,25 = 1,55 m2
terasa b površine 18,93 m2 x 0,25 = 4,73 m2


SPOREDNI DIO 3 UKUPNO realne površine 25,13m2, a prodajne površine 6,28 m2


PRIPADAK: 2
PM3 12,50 x 0,20 = 2,50 m2
vrt 10,57 m2 x 0,10 =1,06 m2


PRIPADAK 3 ukupno realne površine 23,07 m2, a prodajne 3,56 m2


UKUPNA PRODAJNA POVRŠINA IZRAŽENA PO KOEFICIJENTIMA 70,77 m2
Cijena je izražena s PDV-om.
 
 
 
 
 
 
 
Značajke
Vrsta
Stan
Ugovor
Prodaja
Kat
2 kat
Katovi zgrade
2
Površina
70 m²
Prostorije
3
Spavaće sobe
2
Kupaonice
2
Grijanje
Centralno, radijatori, napajanje električnom energijom
Ostale karakteristike
  • Vanjska stolarija od stakla / PVC-a
Informacije o cijeni
Cijena
€ 201.150
Cijena po m²
2.874 €/m²
Pojedinosti o troškovima
Troškovi etažiranja
Bez naknada za etažno vlasništvo
Energetska učinkovitost

Potrošnja energije

A+

Tlocrt
Stan u novogradnji, Prodaja, Zagreb, Sesvete
Stan u novogradnji, Prodaja, Zagreb, Sesvete
Stan u novogradnji, Prodaja, Zagreb, Sesvete
Stan u novogradnji, Prodaja, Zagreb, Sesvete
Otkrijte svaki kutak nekretnine
+5
Dodatne mogućnosti

Obratite se oglašivaču

Ili