Stan dobro stanje, prvi kat, Šestinski dol, Zagreb

€ 550.000
5+
105 m²
2
1
Da
Terasa

Bilješka

Oglas ažuriran 03. 05. 2026.
Opis

referenca: 831-1

Prodaje se luksuzni 4-sobni stan u novogradnji Sveti Duh, Zagreb + vrt, garaža, ostava i terasa!
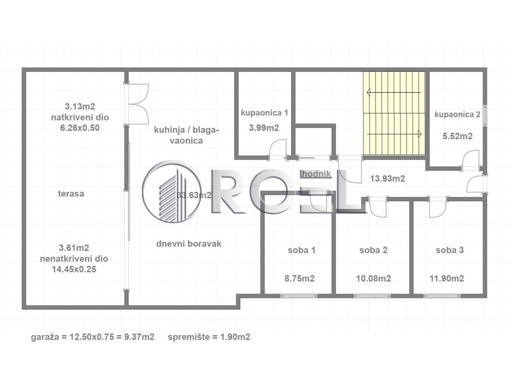
Prodaje se moderan stan u novogradnji 2025. na odličnoj lokaciji Sveti Duh, Zagreb (naselje Črnomerec). Stan se nalazi na 1. katu zgrade s liftom, ukupne stambene površine 87,72 m, s dodatnim sadržajima: Prostrane terase (21,63m2), vlastiti vrt koji se moze pretvoriti u vanjska parking mjesta (36,90 m2), spremište (1,67 m2) i garažno parkirno mjesto (12,50 m2).
Stan se sastoji od hodnika, dnevnog boravka s kuhinjom i blagovaonicom, 3 spavaće sobe i 2 kupaonice. Raspored je odličan stan ima pristup s dvije strane zgrade (sjever i jug), što omogućuje maksimalnu osvijetljenost i prirodnu ventilaciju. U stanu je podno grijanje, klima uređaj i dizalica topline. Energetski razred A+.
Zgrada ima lift, video portafon, električne rolete, protuprovalna vrata, alarmni sustav i omogućava pristup osobama s invaliditetom. Priključena je na vodovod i kanalizaciju te posjeduje građevinsku i uporabnu dozvolu.
Lokacija je idealna za obiteljski život u blizini se nalaze škole, vrtići, trgovine, zdravstvene ustanove, javni prijevoz, a sve to u mirnom i zelenom okruženju uz park-šumu.
Vlasništvo 1/1, bez teretaUseljivo odmah
Agentica Sarah Lipert+385 99 2135 027
Ako želite znati više, možete razgovarati s Sarah Lipert.
Značajke
Vrsta
Stan
Ugovor
Prodaja
Kat
1 kat
Dizalo
Da
Površina
105 m²
Prostorije
5+
Spavaće sobe
3
Kupaonice
2
Namješteno
Ne
Terasa
Da
Klimatizacija
Centralno, hlađenje/grijanje
Ostale karakteristike
  • Alarmni sustav
  • Protuprovalna vrata
  • Video portafon
Informacije o cijeni
Cijena
€ 550.000
Cijena po m²
5.238 €/m²
Energetska učinkovitost
  • Godina izgradnje

    2025
  • Stanje

    Dobro / Useljivo
  • Klima uređaj

    Centralno, hlađenje/grijanje
  • Energetski certifikat

    Neklasificirano
Otkrijte svaki kutak nekretnine
+22
Dodatne mogućnosti

Obratite se oglašivaču

Ili