map icon

Obiteljska vila 154 m², novo, Tar-Vabriga

Tar-Vabriga
€ 1.400.000
4
154 m²
3
Terasa

Bilješka

Oglas ažuriran 05. 12. 2025.
Opis

referenca: 13771-1

www.biliskov.com ID: 13771
Istra, Poreč, projekt luksuznih vila.
Luksuzna vila površine 153,90 m2 na zemljištu površine 781 m2, novogradnja (2023).
Sastoji se od prizemlja i kata.
U prizemlju se nalazi prostrani ulazni prostor i stubište (20,47 m2), kuhinja blagovaonica i dnevni boravak (45,92 m2), spavaća soba (16,55 m2), kupaonica (5,51), wc (2,48 m2), praonica (3,08 m2) , kotlovnica( 13,62 m2).
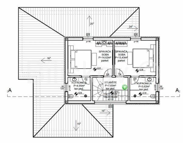
Na prvom katu se nalazi stubište koje zauzima 7,65 m2, dvije kupaonice (4, 95 i 5,62 m2) te dvije spavaće sobe (14,62 i 13,43 m2).
Svaka spavaća soba ima svoju kupaonu dok je wc u prizemlju zajednički.
Vila ima terasu isunčalište (72,88 m2),malu terasu ( 7,63 m2), grijani bazen (36,8 m2), staza oko vile (49,35 m2) te veliki vrt sa sustavom navodnjavanja (zelena površina ukupno iznosi 453,74).
Prostor oko bazena izrađen od WPC-a
Uz vilu dolaze i dva natkrivena parkirna mjesta (svako VMP 12 m2).
Solarni paneli se nalaze na krovu.
Vila ima alarmni sustav Blockalarm.
Vila impresionira svojim individualnim dizajnom i kvalitetnom gradnjom. Veliki prozori omogućuju mnogo prirodnog svjetla u prostoru, a istovremeno pruža prekrasan pogled na prirodu.
Vila se ističe svojom izvanrednom kvalitetom i dizajnom. Prilikom odabira materijala se pazilo da se koriste samo proizvodi više kategorije.
Mikrolokacija ove luksuzne vile idealna je za one koji traže odmor dalje od velikih urbanih sredina a opet nedaleko od svih potrebnih sadržaja.
Kombinacijom modernog dizajna i tradicionalne arhitekture usred prekrasne Istre, ova luksuzna vila nudi iznimnu kvalitetu života.
Vila se može kupiti i u trenutnom stanju izgrađenosti za 1.260.000 .

EC: Očekivani A+
Grijanje: dizalica topline/centralna klima/podno grijanje
Orijentacija: Sjever-Jug-Istok-Zapad
Cijena: 1.400.000
Agencijska naknada: 2% + PDV
Ako želite znati više, možete razgovarati s Jasna Biliškov Barun.
Značajke
Vrsta
Obiteljska vila
Ugovor
Prodaja
Kat
Prizemlje
Površina
154 m² | poslovni prostor 935 m²
Prostorije
4
Kupaonice
3
Terasa
Da
Klimatizacija
Centralno, hlađenje/grijanje
Ostale karakteristike
  • Alarmni sustav
  • Protuprovalna vrata
  • Bazen
Detalji površine

Stambeni prostor

Kat
Prizemlje
Površina
154,0 m²
Koeficijent
100%
Vrsta površine
Glavni
Komercijalna površina
154,0 m²

Zemljište

Kat
Prizemlje
Površina
781,0 m²
Koeficijent
100%
Vrsta površine
Dodatno
Komercijalna površina
781,0 m²
Informacije o cijeni
Cijena
€ 1.400.000
Cijena po m²
1.497 €/m²
Energetska učinkovitost
  • Godina izgradnje

    2023
  • Stanje

    Novo / U izgradnji
  • Klima uređaj

    Centralno, hlađenje/grijanje
  • Energetski certifikat

    Neklasificirano
Otkrijte svaki kutak nekretnine
+14
Dodatne mogućnosti

Obratite se oglašivaču

Ili