Dvosobni stan Varaždinska, Sesvete sjever, Zagreb

€ 230.000
2
78 m²
3
Balkon

Bilješka

Oglas ažuriran 03. 03. 2026.
Opis

referenca: EUROVILLA-795840

Sesvete, Popovec, trosobni penthouse, 79 m2 NKP, NOVOGRADNJA

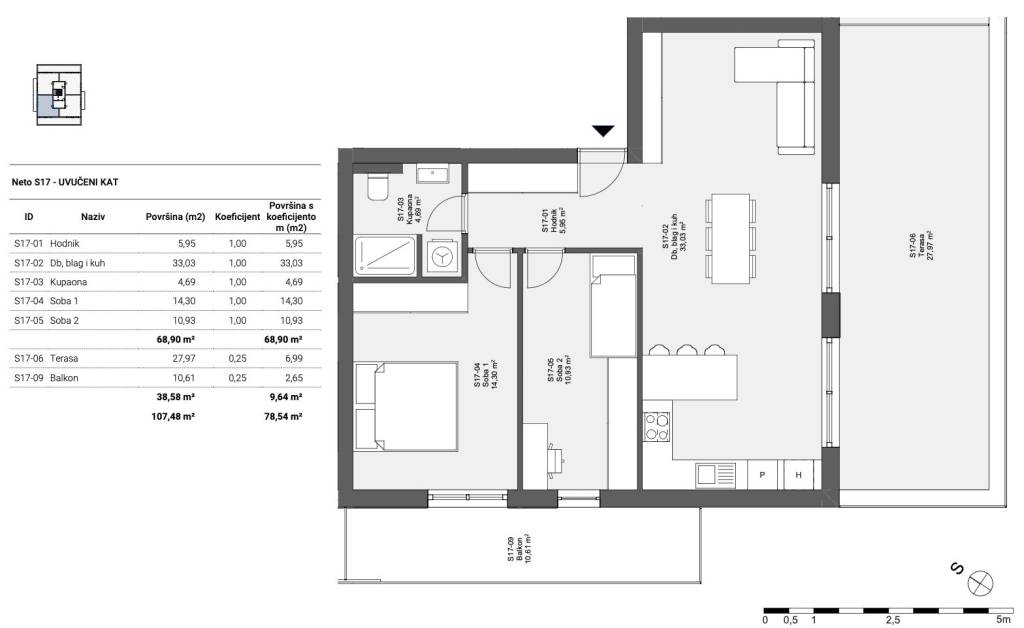
Zagreb, Sesvete, Popovec, prodaje se trosoban stan sa velikom terasom, zatvorene površine 69 m2. Dio je vrhunskog projekta s 19 stanova na četiri etaže u zgradi s liftom te garažnim mjestima u podzemoj etaži, na vrlo dobroj i prometno povezanoj lokaciji.Projekt Popovec odlikuje odlična projektiranost po pitanju tlocrta i iskoristivosti prostora uz iznimno funkcionalna spremišta na istim etažama gdje su stanovi. Gradnja je armiranobetonska s minimalno 15 cm termoizolacije, a od opreme se ističe podno grijanje, vrhunska stolarija, keramika i parketi prve klase, klimatizacija u svakoj sobi i sl. Stanovi imaju velike terase i otvore koji im donose dovoljno svjetla te ostavljaju dodatni dojam prostranosti.Stan S17 se nalazi na drugom katu te se sastoji od dnevnog prostora s kuhinjom i blagovaonicom, dvije spavaće sobe, kupaonice, ulaznog dijela, hodnika, terase i balkona.Uz stan je obavezna kupnja spremišta (2,96 m2) po cijeni od 4.500 € te garažnog (18.000-21.000 €) ili vanjskog parkirnog mjesta (7.000 €).Lokacija je vrlo dobra, u brzorastućem naselju sa svega 5 minuta vožnje do središta Sesveta i manje od tri minute vožnje do autoceste. Također, budući produžetak Branimirove ulice će uvelike ubrzati dolazak u centralni dio Zagreba. Škola i vrtić su udaljeni manje od 300 metara što je dobar preduvjet za obiteljski život.Za ostala pitanja stojimo Vam na raspolaganju.... Više na eurovilla.hr, ID: 795840
Ako želite znati više, možete razgovarati s Antoni Širić.
Značajke
Vrsta
Penthouse
Ugovor
Prodaja
Kat
3
Površina
78 m²
Prostorije
2
Spavaće sobe
2
Balkon
Da
Detalji površine

Stambeni prostor

Kat
3
Površina
78,5 m²
Koeficijent
100%
Vrsta površine
Glavni
Komercijalna površina
78,5 m²
Informacije o cijeni
Cijena
€ 230.000
Cijena po m²
2.949 €/m²
Energetska učinkovitost
  • Stanje

    Novo / U izgradnji
  • Energetski certifikat

    Oslobođeno
Tlocrt
Otkrijte svaki kutak nekretnine
+3
Dodatne mogućnosti

Obratite se oglašivaču

Ili