map icon

Četverosobni stan novo, Voštarnica - Poluotok, Zadar

ZadarVoštarnica - Poluotok
€ 842.000
4
159 m²
2
Da
Terasa

Bilješka

Oglas ažuriran 17. 11. 2025.
Opis

referenca: 38672

ZADAR, PETRČANE - Punta Skala! Luksuzni penthouse 2 minute od plaže s panoramskim pogledom na more! S3

ZADAR, PETRČANE - Punta Skala! Luksuzni penthouse 2 minute od plaže s panoramskim pogledom na more! S3.

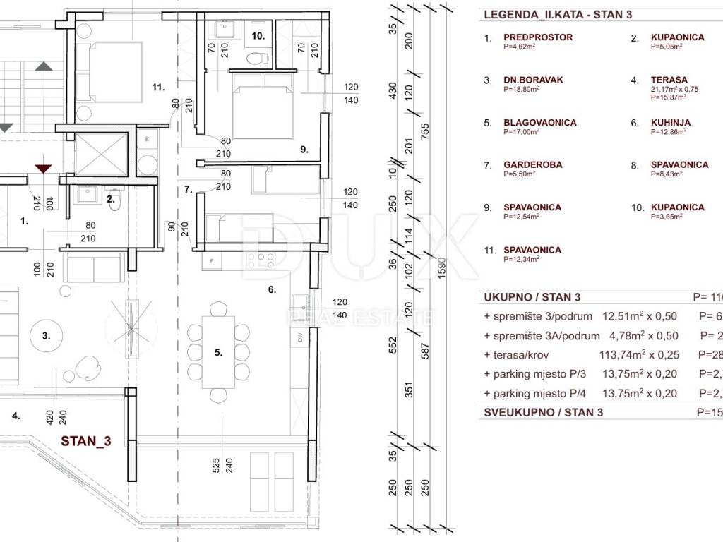
Na prodaju je luksuzan penthouse na drugom katu moderne novogradnje, smješten na ekskluzivnoj lokaciji Punta Skala u Petrčanima, svega 110 metara od mora. Ova jedinstvena nekretnina neto površine 159,23 m2 pruža veličanstven pogled na more iz svakog kuta, a posebnu čar nudi privatna krovna terasa površine čak 113,74 m2 savršeno mjesto za uživanje u spektakularnim zalascima sunca, druženja ili stvaranje vlastitog kutka opuštanja iz snova.

Penthouse se sastoji od tri prostrane spavaće sobe, dvije elegantno uređene kupaonice, prozračnog dnevnog boravka, blagovaonice, kuhinje i podrumske ostave. Uz sve to, dolaze i dva privatna parkirna mjesta te lift koji vodi direktno do vašeg kata. Kvaliteta gradnje je na najvišoj razini AB konstrukcija i zidovi od opeke, drvo-aluminij stolarija vrhunske kvalitete, talijanski porculan prve kategorije brendova Marazzi i Mirage, hrastov parket u spavaćim sobama, podno grijanje u kupaonicama i dnevnom boravku, Mitsubishi multi split sustav klimatizacije te sanitarije renomiranog proizvođača Villeroy&Boch. Zgrada se dodatno ističe luksuznim kamenim stubištem i ulaznim prostorom, uređenom hortikulturom, betonskim kockama na parkingu i sigurnošću koju pružaju protuprovalna vrata.

Lokacija je izuzetna mirna, elitna zona uz more, a opet nadomak svih sadržaja. U blizini se nalaze renomirani Falkensteiner resort, brojni kafići, restorani, trgovine i sve što vam je potrebno za svakodnevni život ili vrhunski odmor. Petrčane su jedno od najtraženijih mjesta u zadarskoj regiji, poznato po kristalno čistom moru, prirodnim ljepotama i izvrsnoj povezanosti sa Zadrom koji je udaljen svega nekoliko minuta vožnje.

Završetak gradnje planiran je do ljeta 2026. godine.

Za više informacija i dogovor oko razgledavanja, slobodno nas kontaktirajte ne propustite priliku za ovakvu nekretninu.

Poštovani klijenti, agencijska provizija naplaćuje se u skladu s Općim uvjetima poslovanja
www.dux-nekretnine.hr/opci-uvjeti-poslovanja

ID KOD AGENCIJE: 38672

Josip Šestan
Agent s licencom
Mob: +385 91 799 6986
Tel: +385 91 480 8808
E-mail: josip@dux-dalmacija.com
www.dux-dalmacija.com
Ako želite znati više, možete razgovarati s Josip Šestan.
Značajke
Vrsta
Stan
Ugovor
Prodaja
Dizalo
Da
Površina
159 m²
Prostorije
4
Spavaće sobe
3
Kupaonice
2
Balkon
Ne
Terasa
Da
Klimatizacija
Samostalno, hlađenje/grijanje
Informacije o cijeni
Cijena
€ 842.000
Cijena po m²
5.296 €/m²
Energetska učinkovitost
  • Godina izgradnje

    2026
  • Stanje

    Novo / U izgradnji
  • Klima uređaj

    Samostalno, hlađenje/grijanje
  • Energetski certifikat

    Oslobođeno
Otkrijte svaki kutak nekretnine
+7
Dodatne mogućnosti

Obratite se oglašivaču

Ili