Trosobni stan novo, prvi kat, Sukošan

€ 273.000
3
1
1
Ne
Terasa

Bilješka

Oglas ažuriran 28. 11. 2025.
Opis

referenca: RE229009

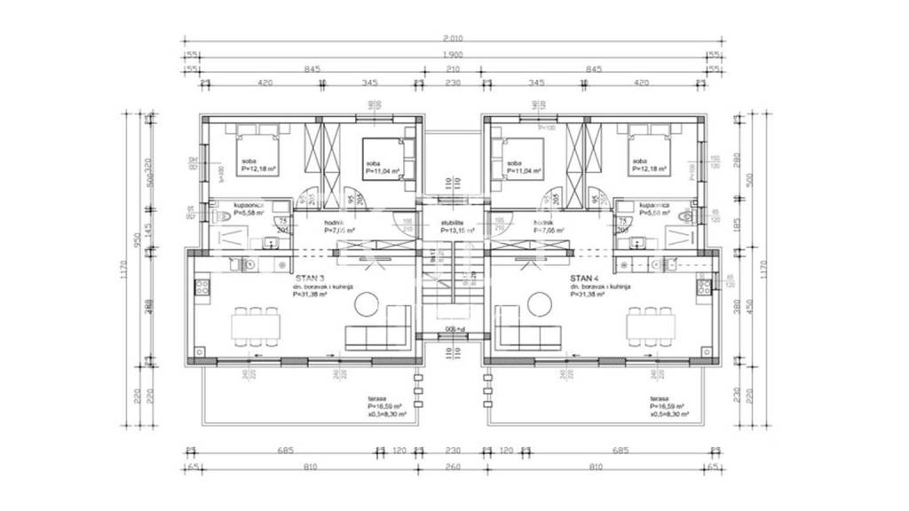
Zadar, Sukošan – trosoban stan 78,03 m², novogradnja

Trosoban stan površine 78,03 m², smješten na prvom katu moderne stambene zgrade u mjestu Sukošan pokraj Zadra. Stan se nalazi na mirnoj lokaciji, svega nekoliko minuta hoda od mora i svih važnih sadržaja. Stan se sastoji od hodnika, dvije spavaće sobe, kupaonice, kuhinje te dnevnog boravka s izlazom na terasu. Ukupna površina prostora iznosi 78,03 m². Također, stanu pripada i vanjsko parkirno mjesto. Stan će biti opremljen vrhunskim materijalima i opremom: • Armirano-betonska konstrukcija, zidovi od opeke • Drvo-aluminijska stolarija visoke kvalitete • Talijanski porculanski pločice 1. klase (Marazzi/Mirage) • Hrastov parket u spavaćim sobama • Podno grijanje u kupaonici i dnevnom boravku • Mitsubishi multi-split sustav klimatizacije • Kamen u stubištu i na ulazu u zgradu • Villeroy & Boch sanitarije • Parkirno mjesto popločano betonskim kockama • Uređeni vrtovi i hortikulturno oblikovan okoliš • Protuprovalna ulazna vrata Zgrada je trenutno u izgradnji, a završetak radova planiran je do travnja 2026. godine. Ova nekretnina izvrsna je prilika za obiteljski život, ali i kao investicija za turistički najam. Za više informacija ili dogovor oko razgledavanja, slobodno nas kontaktirajte.
Značajke
Vrsta
Stan
Ugovor
Prodaja
Kat
1 kat
Katovi zgrade
2
Dizalo
Ne
Prostorije
3
Spavaće sobe
2
Kupaonice
1
Terasa
Da
Garažno mjesto, parkirna mjesta
1 na zajedničkom parkingu
Grijanje
Centralno, zrak, napajanje električnom energijom
Klimatizacija
Centralno, hlađenje
Udaljenost od mora
200 m
Informacije o cijeni
Cijena
€ 273.000
Energetska učinkovitost

Potrošnja energije

A

Tlocrt
Otkrijte svaki kutak nekretnine
+5
Dodatne mogućnosti

Obratite se oglašivaču

Ili